Московская область, Щёлково, Жилой комплекс "Солнечный Парк"
Площадь
Жилая
Кухня
Отделка
Класс жилья
Комнат
Номер кв.
Этаж
Доступна к покупке 2-комнатная квартира в новом жилом комплексе "ЖК Солнечный парк" 🏢
Квартира расположена на 13-м этаже 17-этажного дома.
Прекрасный выбор для инвестиций.
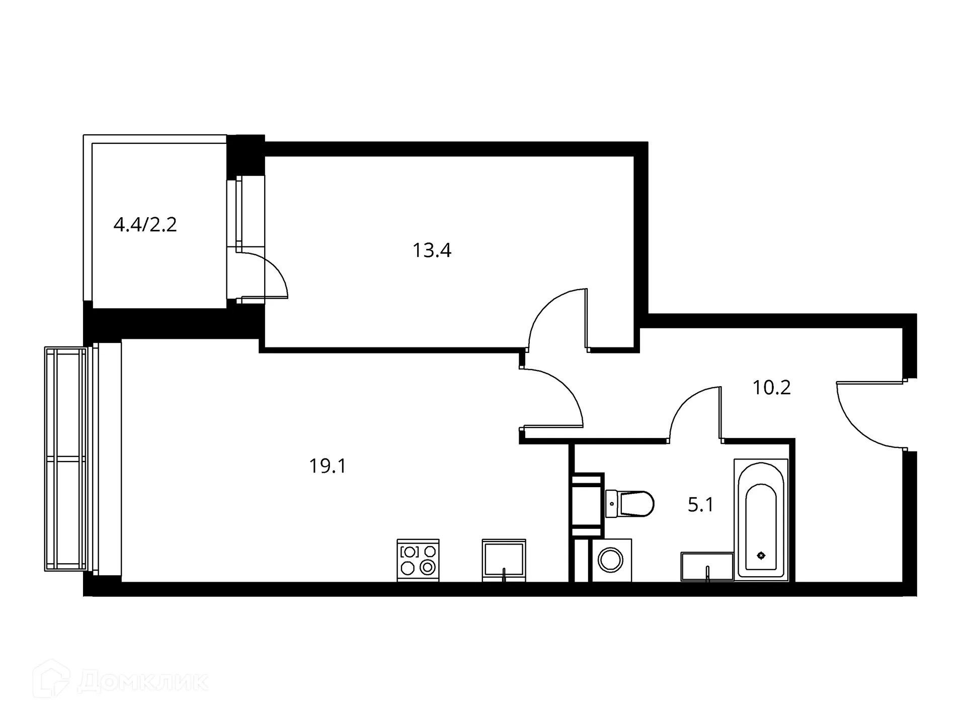
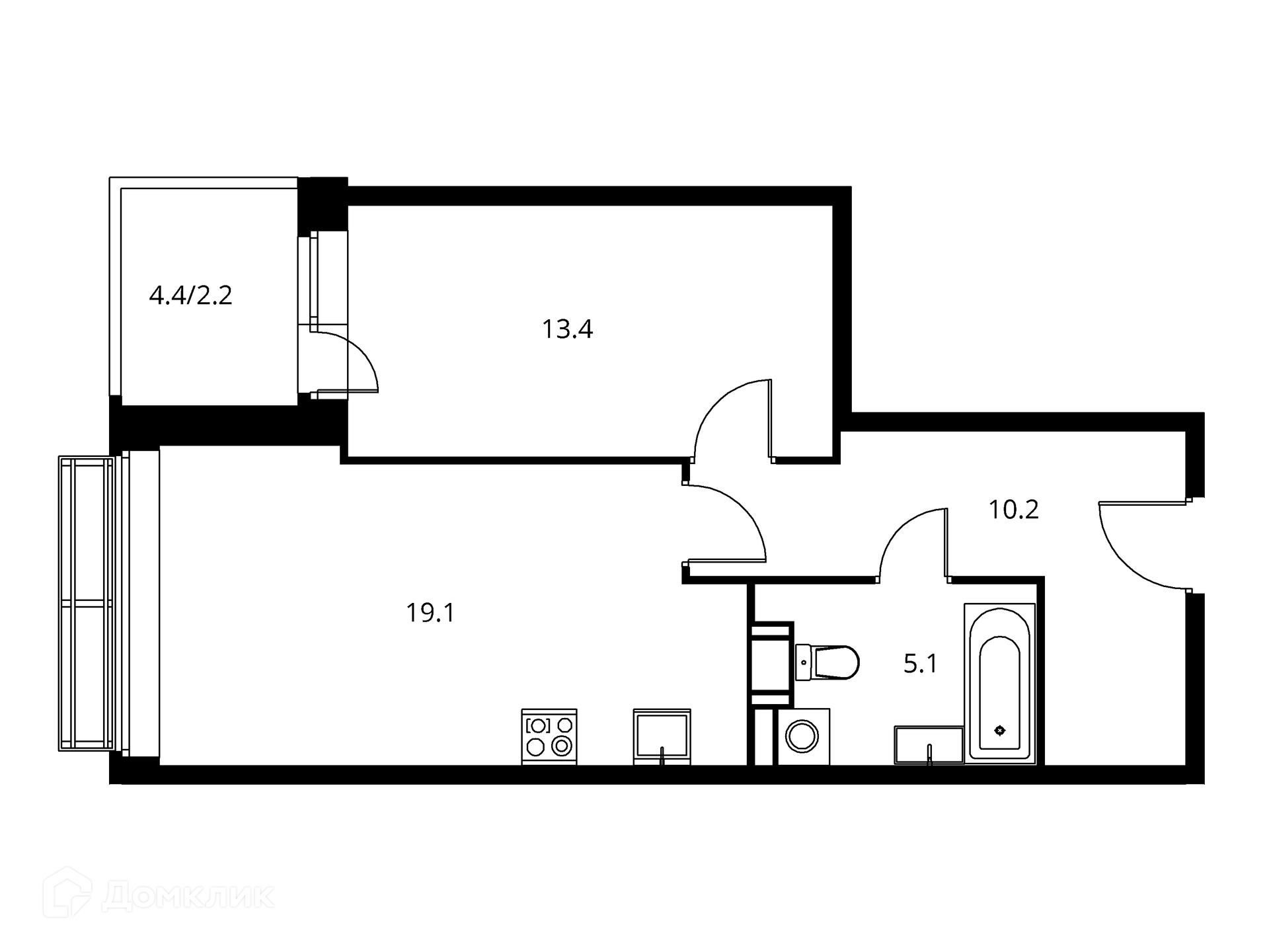
Удобная планировка: 📐
✅ Общая площадь: 50.9 м².
✅ Уютная жилая площадь: 13.4 м².
✅ Кухня: 19.1 м² — место для кулинарных шедевров.
Особенности квартиры: ✨
🔧 Вариант отделки: без ремонта. Готовая база для вашего интерьера.
🌞 Панорамное остекление наполняют помещения естественным светом.
🌿 Класс жилья: Комфорт — современные технологии.
Финансы и ипотека: 💰
💳 Ипотека от 65 975 руб/мес.
🏦 Подходит под семейную и IT ипотеку.
🤝 Безопасная сделка гарантирует спокойствие.
Для бесплатного бронирования и проверить актуальную стоимость — позвоните нам прямо сейчас! 📞
Параметры новостройки в ЖК Солнечный парк:
• Номер квартиры - 128
• Вариант отделки - без ремонта
• Площадь - 50.9 м²
• Жилая Жилая - 13.4 м²
• Площадь кухни - 19.1 м²
• Класс жилья - Комфорт
• Комнат - 2-комнатная квартира
• Этаж - 13
• Дом - 17-этажный
Полезная информация о ЖК Солнечный парк
"Солнечный парк" - это жилой комплекс для людей, которые ищут комфортное жилье в Подмосковье.
У вас будет собственный выход в Центральный парк с пляжем, а в шаговой доступности городской физкультурно-оздоровительный комплекс, футбольное поле, детский городской стадион и теннисные корты. Рядом с "Солнечным парком" расположены детский сад, колледж и школа, а в планах строительство еще одной школы.
Дома сданы.
Срок сдачи: 4 кв. 2023 г.
Срок сдачи: 4 кв. 2023 г.
Площади квартир
Тип жилья
Этажность
Класс жилья
Корпусов
Стены