Московская область, Щёлково, Жилой комплекс "Солнечный Парк"
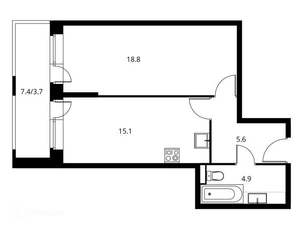
Площадь
Жилая
Кухня
Отделка
Класс жилья
Комнат
Номер кв.
Этаж
В продаже 3-комнатная квартира в современном жилом комплексе "ЖК Солнечный парк" 🏢. Квартира расположена на 16-м этаже 17-этажного дома. Прекрасный выбор для комфортной жизни.
Для бесплатного бронирования и зафиксировать цену — позвоните нам прямо сейчас! 📞
"Солнечный парк" - это жилой комплекс для людей, которые ищут комфортное жилье в Подмосковье. У вас будет собственный выход в Центральный парк с пляжем, а в шаговой доступности городской физкультурно-оздоровительный комплекс, футбольное поле, детский городской стадион и теннисные корты. Рядом с "Солнечным парком" расположены детский сад, колледж и школа, а в планах строительство еще одной школы. Дома сданы.
Срок сдачи: 4 кв. 2023 г.
Срок сдачи: 4 кв. 2023 г.
Площади квартир
Тип жилья
Этажность
Класс жилья
Корпусов
Стены