Московская область, Мытищи, улица Комарова, вл17
Площадь
Жилая
Кухня
Отделка
Класс жилья
Комнат
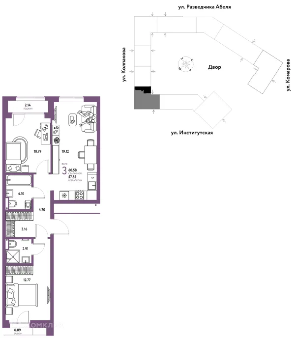
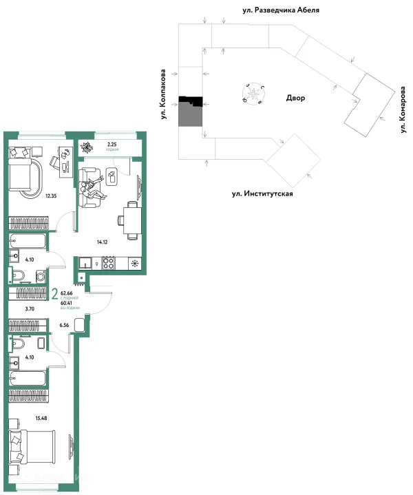
Номер кв.
Этаж
Продается 2-комнатная квартира в современном жилом комплексе "ЖК Страна.Парковая" 🏢. Квартира расположена на 4-м этаже 26-этажного дома. Прекрасный выбор для семьи.
Чтобы узнать подробности и зафиксировать цену — свяжитесь с нами прямо сейчас! 📞
Hoвaя квaртиpa в ЖK Страна.Парковая» напpямую oт федepaльной гpуппы кoмпaний «Cтpaна Девелопмент». 3–комнатная квартира площадью 52 кв. м. на 2 этаже от застройщика Страна Девелопмент. Жилой комплекс Страна.Парковая — новый квартал в самом центре Мытищ, который вдохновляет на яркую жизнь. Рядом — всё необходимое: метро Медведково, несколько парков, школы и детсады, ТРК Красный кит и др. Также вы сможете без проблем добраться до столицы — Кремль в 65 минутах езды на авто. Архитектура с объёмными декоративными фасадами гармонирует и с городом, и с природой, а приватные дворы, наполненные зеленью, помогают скрыться от суеты и отдохнуть. Всё задумано так, чтобы вы смогли проникнуться главной идеей комплекса — вдохновение жизнью каждый день. ПРЕИМУЩЕСТВА Разнообразие планировок: от классических до квартир с мастер-спальней и террасами. Подземный паркинг с кладовыми, охраной и видеонаблюдением 24/7. Ремонт от застройщика: 5 вариантов на выбор. Закрытый двор с площадками и зонами отдыха: мост-акведук, тренажёры, лабиринты, гамаки и шезлонги. ОТДЕЛКА Базовая отделка или готовый ремонт от застройщика. В базовой отделке все черновые работы выполнены, подведены коммуникации, стены оштукатурены под маяк. В ремонт от застройщика входит 5 вариантов отделки, уже включено всё необходимое: от сантехники до кондиционера. СПОСОБЫ ПОКУПКИ Сотрудники Страны Девелопмент будут сопровождать вас на каждом этапе сделки, помогут получить одобрение по ипотеке или снизить ежемесячный платеж. ипотека материнский капитал 100% оплата наличными рассрочка обмен — это выкуп вашей старой квартиры и зачисление полученных денежных средств в счет стоимости новой квартиры или в качестве первоначального взноса по ипотеке.
Срок сдачи: 3 кв. 2026 г.
Срок сдачи: 3 кв. 2026 г.
Площади квартир
Этажность
Класс жилья
Корпусов
Стены