Московская область, Королёв, Первомайский м-н, Солнечная улица, 2
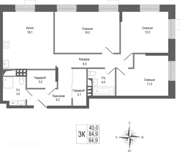
Площадь
Жилая
Кухня
Отделка
Класс жилья
Комнат
Номер кв.
Этаж
Доступна к покупке 2-комнатная квартира в новом жилом комплексе "ЖК Киноквартал" 🏢. Квартира расположена на 1-м этаже 9-этажного дома. Отличный вариант для комфортной жизни.
Чтобы узнать подробности и проверить актуальную стоимость — позвоните нам прямо сейчас! 📞
Он расположен в историческом месте на живописном берегу реки Клязьмы. Здесь будут созданы все условия для вдохновения, работы, отдыха, воспитания детей. В составе квартала будут построены корпуса переменной этажности (4-6-8 этажей). В домах авторской архитектуры расположатся комфортные квартиры с функциональными планировками как классического, так и евро-формата. В проекте -широкий спектр вариантов метражом от 20 до 90 кв.м., с «французскими» балконами, местами под гардеробные, мастер-спальнями. Каждый может выбрать что-то своё – квартиру с видом на реку или на красивый закрытый двор «без машин». На территории квартала будет организована безбарьерная среда, появятся места для игр детей, отдыха, пешеходные зоны вдоль набережной реки, атмосферные общественные пространства для творчества и досуга. В составе комплекса будут построены подземные и надземные паркинги, организованы гостевые стоянки по периметру корпусов. Жилой комплекс расположен в окружении развитой инфраструктуры. В радиусе 1 км от него находятся 3 муниципальные дошкольные организации, 3 частные, общеобразовательная школа, гимназия, лицей. Помимо этого – городская больница, мед центры, спортивные школы и клубы, торговые точки. Первые этажи зданий в ЖК будут отданы под развитие собственной инфраструктуры квартала. Там будут функционировать различные социальные и коммерческие объекты: детский сад на 120 мест с собственной обширной территорией и зонированием под игровые и спортивные занятия детей; кабинет врача общей практики; физкультурно-оздоровительный комплекс; различные торговые помещения и предприятия услуг. Жилой Киноквартал имеет хорошее транспортное сообщение со всеми частями города и Москвой. Он расположен в 15 мин. от ж/д станции «Болшево», в 20 мин. пешком от ж/д станции «Фабрика 1 Мая». Помимо этого, в перспективе в 2026 году планируется открытие станции МЦД-5 «Болшево».
Срок сдачи: 1 кв. 2026 г.
Срок сдачи: 1 кв. 2026 г.
Площади квартир
Этажность
Класс жилья
Корпусов
Стены