Другие планировки в ЖК СТРАНА.ЗАРЕЧНАЯ

Планировка Студия в ЖК СТРАНА.ЗАРЕЧНАЯ
25.6 м²

Студия

от 16 694 118 ₽

1 предложение

Смотреть планировку
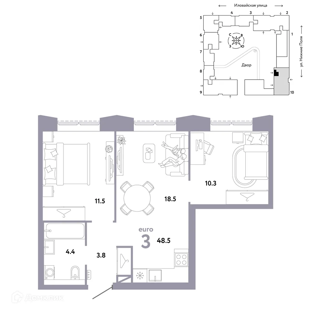
Планировка 3 комн. в ЖК СТРАНА.ЗАРЕЧНАЯ
53.7 м²

3-комнатная

от 31 164 706 ₽

1 предложение

Смотреть планировку
Планировка 2 комн. в ЖК СТРАНА.ЗАРЕЧНАЯ
43.1 м²

2-комнатная

от 23 752 941 ₽

2 предложения

Смотреть планировку

Расположение

Срок сдачи: 1 кв. 2028 г.

Москва, Жилой комплекс Страна.Заречная

Подробнее о ЖК

Срок сдачи: 1 кв. 2028 г.

25.6 - 53.7 м²

Площади квартир

Квартиры

Тип жилья

39

Этажность

Комфорт

Класс жилья

1

Корпусов

монолит

Стены