Описание квартиры в "ЖК РАКУРС"
Продается 2-комнатная квартира в современном жилом комплексе "ЖК РАКУРС" 🏢.
Квартира расположена на 17-м этаже 46-этажного дома.
Прекрасный выбор для семьи.
Удобная планировка
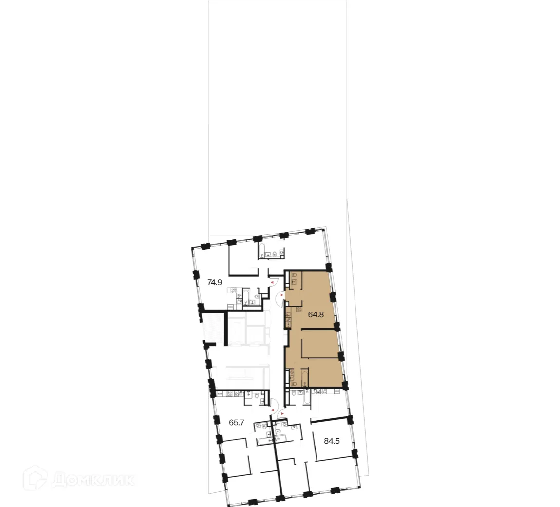
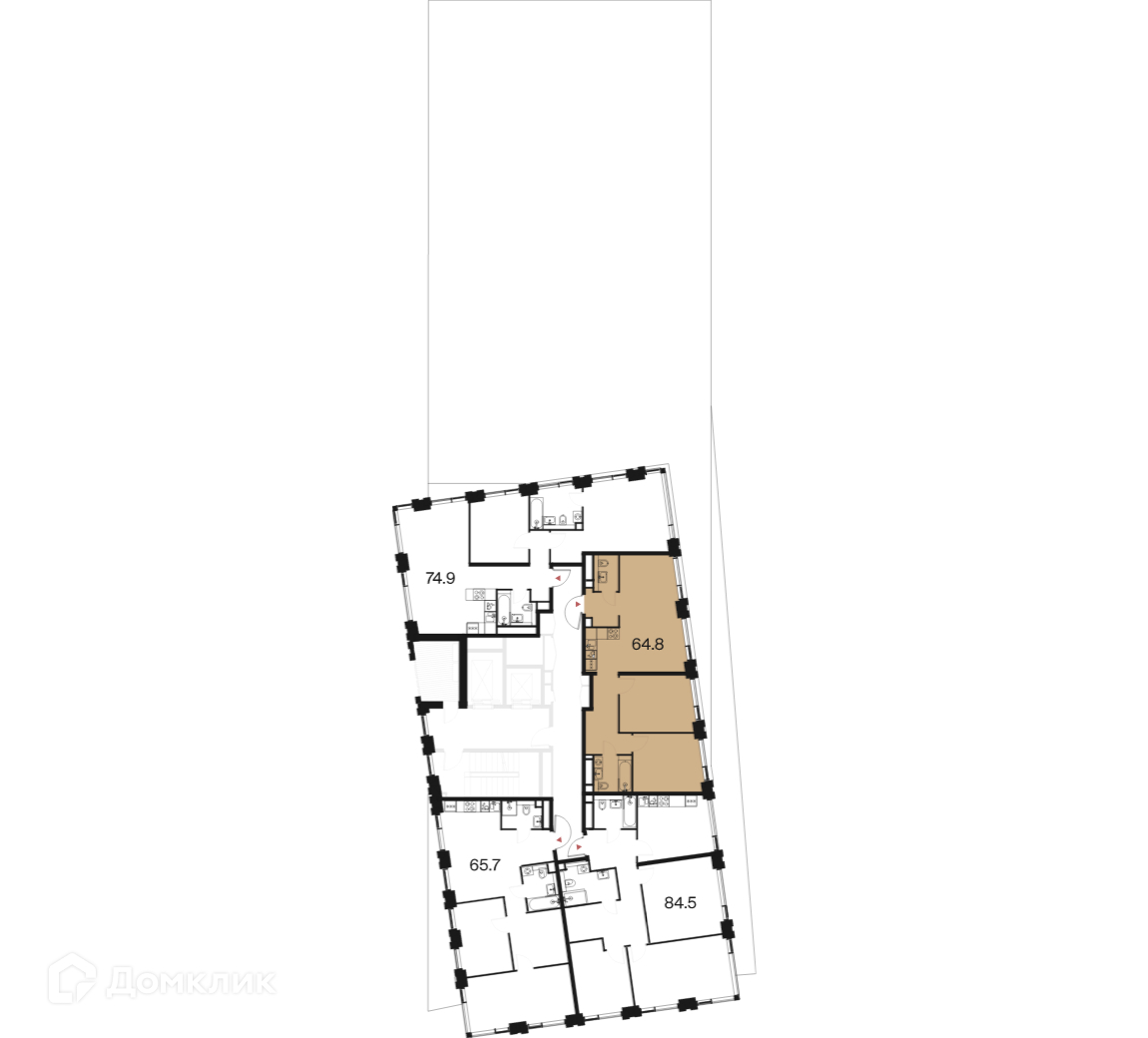
- ✅ Общая площадь: 64.8 м².
- ✅ Уютная жилая площадь: 23.2 м².
- ✅ Кухня: 24.4 м² — эргономичное пространство.
Особенности квартиры
- 🔧 Вариант отделки: без ремонта. Готовая база для вашего интерьера.
- 🌞 Увеличенные оконные проемы наполняют помещения естественным светом.
- 🌿 Класс жилья: Бизнес — современные технологии.
Финансы и ипотека
- 💳 Ипотека от 267 152 руб/мес.
- 🏦 Подходит под семейную и IT ипотеку.
- 🤝 Покупка напрямую от застройщика гарантирует спокойствие.
Для бесплатного бронирования и проверить актуальную стоимость — позвоните нам прямо сейчас! 📞
Характеристики новостройки в ЖК РАКУРС
- Номер квартиры: 79
- Вариант отделки: без ремонта
- Общая площадь: 64.8 м²
- Жилая площадь: 23.2 м²
- Площадь кухни: 24.4 м²
- Класс жилья: Бизнес
- Количество комнат: 2-комнатная квартира
- Этаж: 17
- Этажность дома: 46
Полезная информация о ЖК РАКУРС