Москва, Западный административный округ, Можайский район, жилой комплекс Верейская 41, к4.2
Площадь
Жилая
Кухня
Отделка
Класс жилья
Комнат
Номер кв.
Этаж
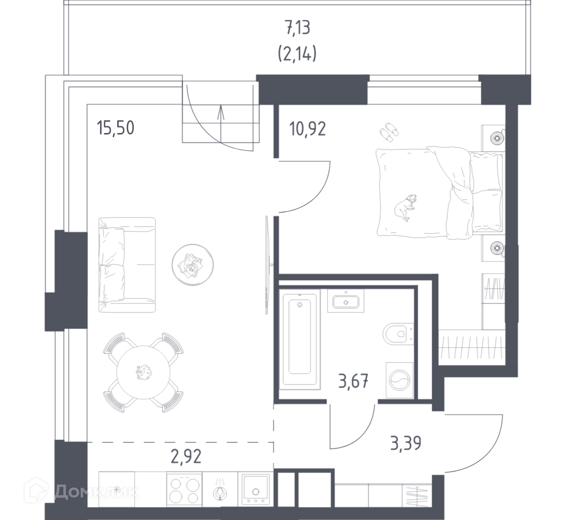
В продаже 1-комнатная квартира в современном жилом комплексе "ЖК Верейская 41" 🏢. Квартира расположена на -м этаже 15-этажного дома. Отличный вариант для семьи.
Чтобы узнать подробности и проверить актуальную стоимость — свяжитесь с нами прямо сейчас! 📞
«Верейская 41» — проект бизнес-класса рядом с «Долиной реки Сетунь» и Кутузовским проспектом. Из панорамных окон открываются виды на природный заказник. Комплекс включает 4 урбан-блока высотой до 14 этажей, зеленые террасы, сад с навесами из растений, спортивные и игровые площадки, плоскостной и 2 подземных паркинга. Планировки сдаются с дизайнерской отделкой в природных тонах.
Срок сдачи: 2 кв. 2026 г.
Срок сдачи: 2 кв. 2026 г.
Площади квартир
Тип жилья
Этажность
Класс жилья
Корпусов
Стены