Москва, Жилой комплекс "Сигнальный 16"
Площадь
Жилая
Кухня
Отделка
Класс жилья
Комнат
Номер кв.
Этаж
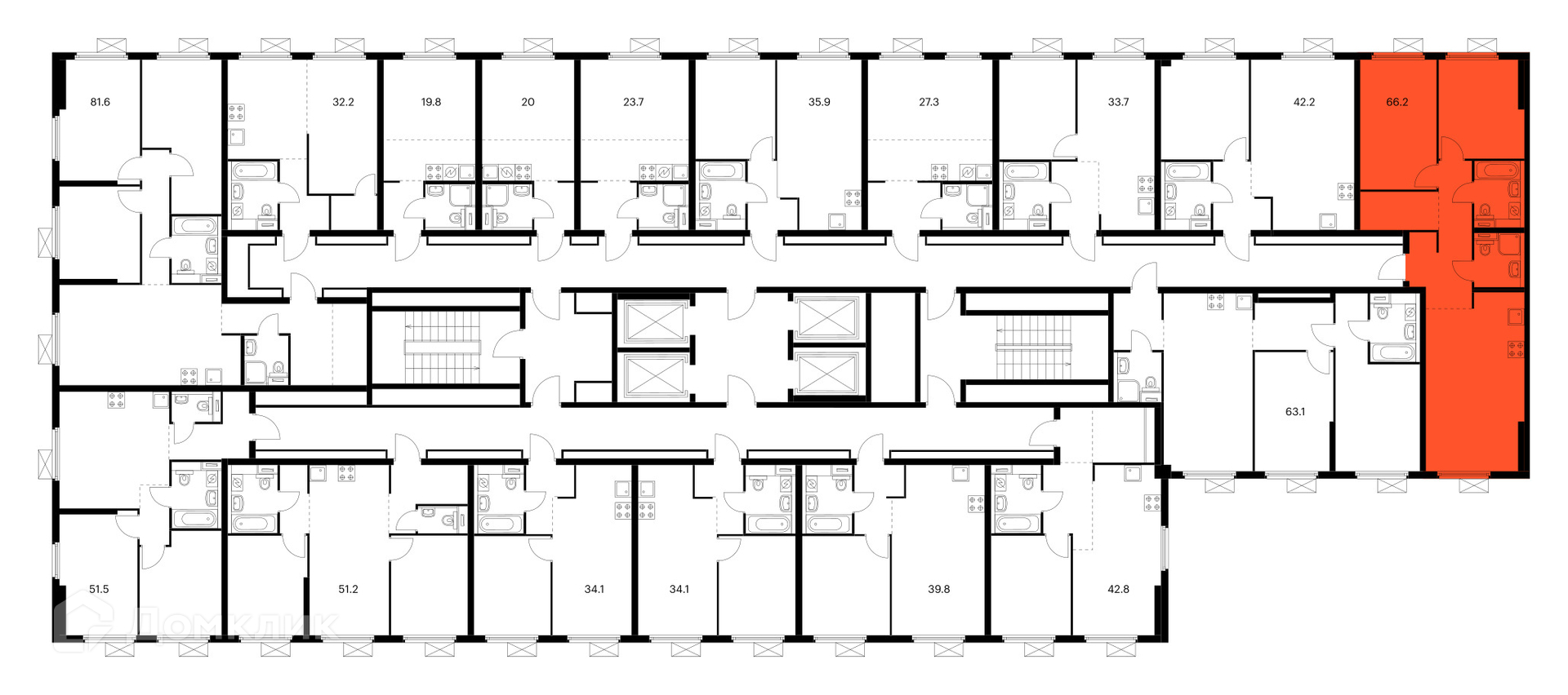
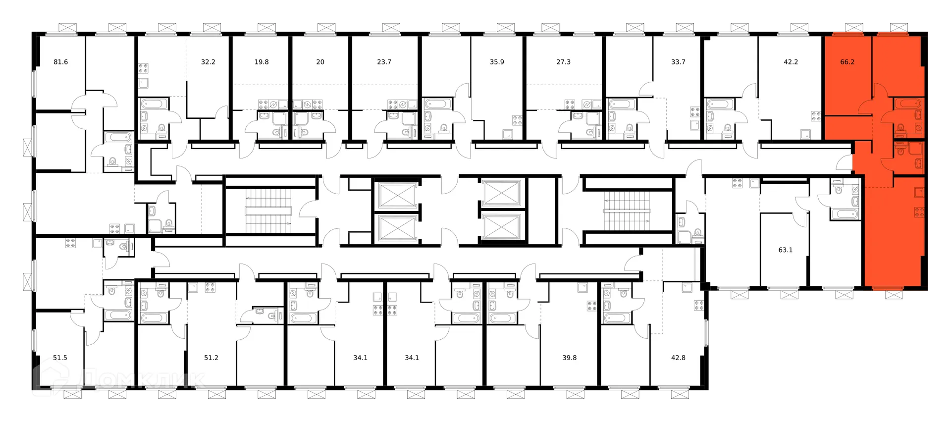
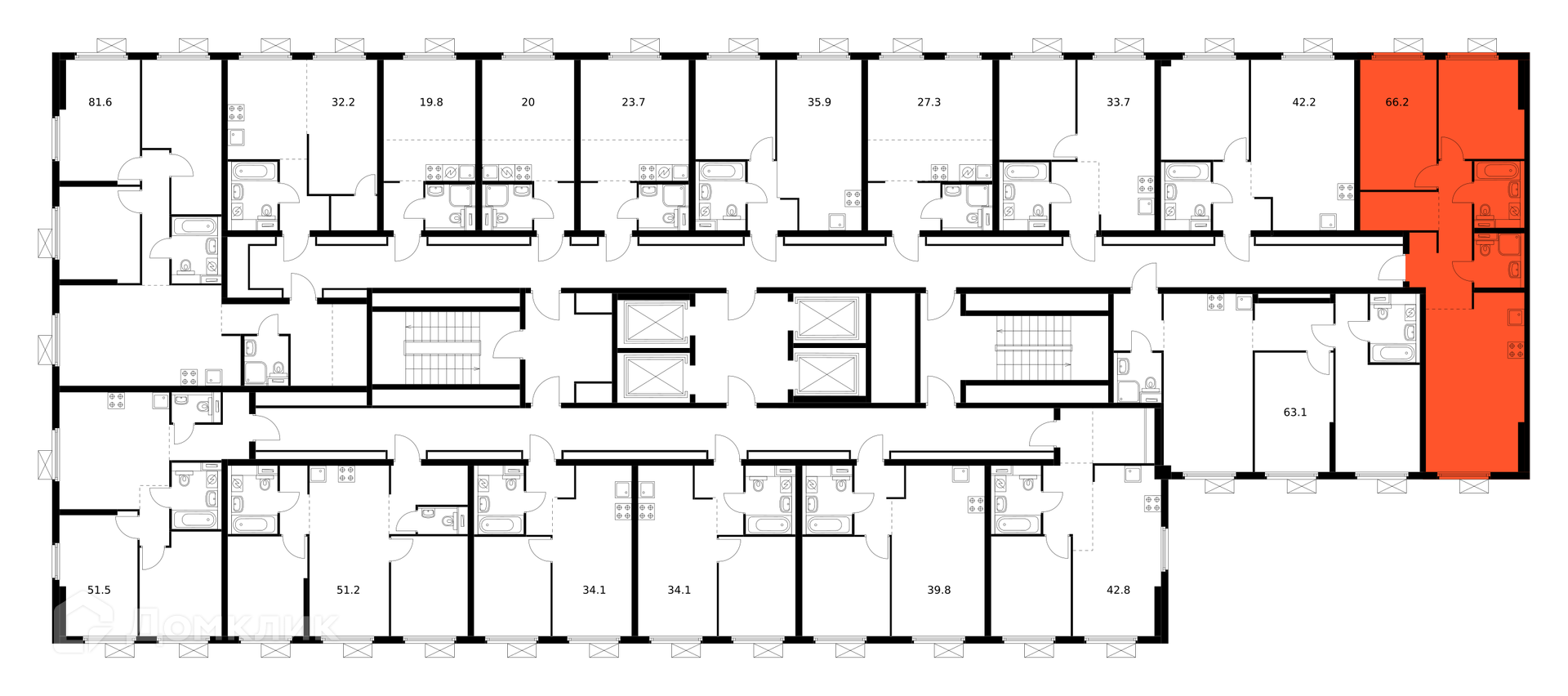
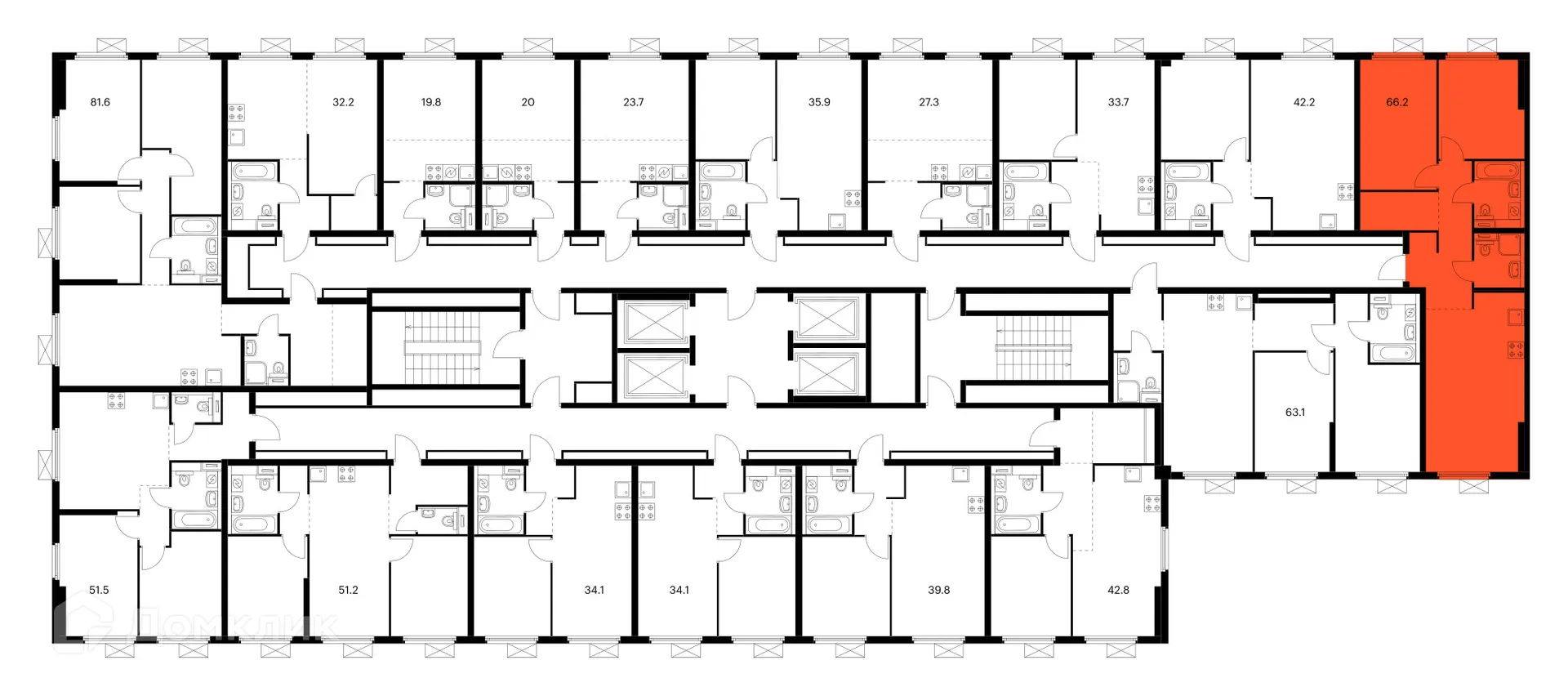
В продаже 2-комнатная квартира в востребованном жилом комплексе "ЖК Сигнальный 16" 🏢. Квартира расположена на -м этаже 35-этажного дома. Отличный вариант для семьи.
Чтобы узнать подробности и проверить актуальную стоимость — свяжитесь с нами прямо сейчас! 📞
«Сигнальный 16» возводится в районе Отрадное, рядом с парком Ботанический сад, в 10 минутах ходьбы от станции метро и МЦК «Владыкино». На автомобиле до Алтуфьевского шоссе ехать 5 минут, до ТТК — 20 минут. MultiHub «Сигнал» - новое уникальное пространство для спорта и отдыха на территории проекта Сигнальный 16. В основе всего здесь заложена концепция волн, их плавности и гибкости. Авторы переосмыслили их в виде изогнутых линий, которые встречаются по всей территории: на памп-треке, на игровой площадке. В MultiHub «Сигнал» будет всё для комфортного отдыха после насыщенного рабочего дня. Помимо тренажёров и брусьев с турниками, здесь расположатся качели-гнёзда, качели-лавочки и лежаки. Также продумана извилистая прогулочная зона, идущая вдоль детской игровой площадки. Детям любых возрастов понравится исследовать уникальное игровое пространство. Ребятам предстоит пройти полосу препятствий: проползти по тоннелю в полусфере, затем взобраться на стальной купол, а после этого — вскарабкаться по канатной сетке длиной в 15 метров, ведущей прямиком к зиплайну. А главной радостью для взрослых и детей станет волнообразный памп-трек с виражами для катания на самокатах, роликах и велосипедах. Для самых маленьких или новичков в спорте предусмотрен бесшумный асфальтовый боул, тренироваться в котором разрешено детям от 5 лет. В проект входят жилые дома, подземные паркинги, школа и детский сад. Все квартиры в домах будут с отделкой — после заселения останется только расставить мебель. На первых этажах откроются магазины и кафе, а прямо под окнами появятся современные детские площадки и места для отдыха. Жилой квартал находится вдали от шума крупных магистралей. Вокруг много скверов и парков, есть школы и детские сады, поликлиники и магазины. Поблизости открыты фитнес-клубы и крупные торговые центры. Недалеко от проекта расположен один из самых красивых парков Москвы — Главный ботанический сад имени Н.В. Цицина РАН, основанный в 1945 году. Это один из крупнейших ботанических садов в Европе. Территория парка является особо охраняемой территорией федерального значения и объектом культурного наследия. Дойти до «Ботанического сада» жители «Сигнального 16» смогут по безопасной и удобной дороге рядом с кварталом за 15 минут. Широкие асфальтированные тротуары сделают путь приятным как для обычных пешеходов, так и для родителей с колясками, велосипедистов и маломобильных жителей.
Срок сдачи: 1 кв. 2023 г.
Срок сдачи: 1 кв. 2023 г.
Площади квартир
Тип жилья
Этажность
Класс жилья
Корпусов
Стены